본문 바로가기
우진종합주방
ABOUT
회사소개
조직도
고객사
오시는길
BUSINESS
주방기구 제작
주방기구 시공
주방용품 판매
PRODUCT
업소용 주방기구
업소용 주방기물
WORK
주요실적
시공사례
도면설계
CUSTOMER
납품시공 견적
제품 견적
A/S 신청
마련된 답변
공지사항
상품명
필수
ABOUT
BUSINESS
PRODUCT
WORK
CUSTOMER
WORK
WORK
주요실적
시공사례
도면설계
WORK
도면설계
주요실적
시공사례
도면설계
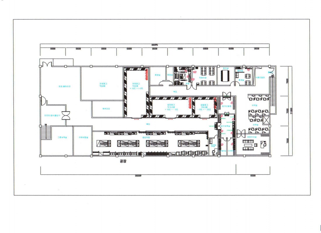
도면설계
차별화된 디자인과 기술력이 반영된 최상의 설계를 합니다.
중식
중식 레스토랑 주방
교육기관
연수원 구내식당
양식
레스토랑
한식
반찬공장
기업
회사 구내식당
교육기관
어린이집
중식
짬뽕 전문점
복지관ㆍ관공서
노인종합복지관
일반음식점
쭈꾸미 전문점
일반음식점
쭈꾸미 전문점
교육기관
어린이집
교육기관
학교 구내식당
처음
1
페이지
열린
2
페이지